снежинка снежинка снежинка
Уцененные товары со скидкой до 80%
Подробнее
снежинка снежинка снежинка
Свяжитесь с нами
+7 (391) 989-13-81
Ваш город: Красноярск
Пн-Пт с 13:00 до 22:00
 
4.9 5

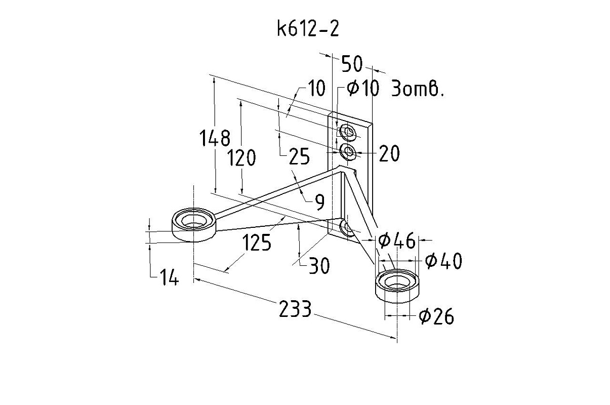
Крепление рутеля к стене, двойное, фланец с тремя отверстиями, AISI 304 k612-2

9 405 ₽/шт
Товары-аналоги
Наличие:
Доставка день в день с нашего склада до ТК для отправки в ваш город
Одинцово
В наличии
СПб-Волковская
В наличии
Москва-Жулебино
В наличии
КЗ-Алматы
В наличии
Екатеринбург
В наличии
Артикул
k612-2
Материал
AISI 304 (08Х18Н10)
Поверхность
Полированная
Описание
Крепление рутеля к стене, двойное, фланец с тремя отверстиями, AISI 304
Назначение
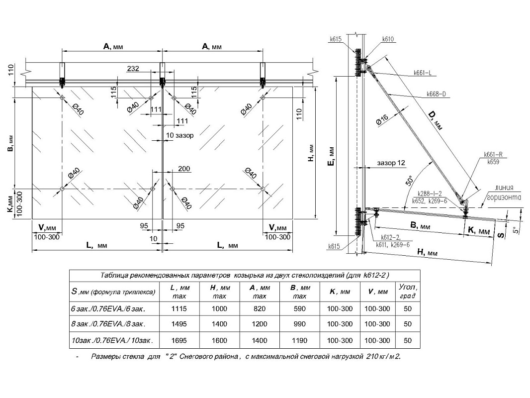
Применяется при монтаже козырьков из стекла, навесов над входом в магазин, козырьков над входом в подвал или над местом курения. Один из самых ответственных элементов крепления козырька. Отвечает за крепление конструкции непосредственно к зданию и несёт на себе весь её вес.
Особенность модели
- Широкий спектр возможностей. Данная деталь чаще всего продаётся в комплекте с рутелем. Однако мы специально продаём её отдельно, так как это делает возможности её применения значительно шире. - Держатель для подвеса стеклянного козырька может использоваться как держатель любых навесных конструкций. Например, рекламных. Высокое качество при низкой цене. 304-я марка стали обеспечивает высокую устойчивость к агрессивной внешней среде. При этом позволяет выпускать крепление по вполне приемлемой цене. Отличный внешний вид детали обеспечивается её высококачественной полировкой. - Исключает возможность излома стекла. Конструкция фланца надёжно защищает конструкцию козырька от колебательных нагрузок.
Сборка и установка
Держатель крепится к стене посредством шпильки и втулки к кондуктору. Идеально становится на k615S , если использовать другие кондукторы, нужно проводить подготовительные работы. Затем в держатель вкручивается рутель (k274-2 или k269-6) и уже на рутель крепится стекло.
Аналогичные модели
k612- Держатель стеклянного козырька двойная (Соединение стойка – рутель х 2). k612-2 имеет три отверстия и выдерживает большую нагрузку
Доставка транспортной компанией ПЭК.

Адрес главного терминала: ул. Чистопольская, д. 6

Доставка транспортной компанией Деловые линии

Адрес основного филиала: ул. Таганская, 60, Екатеринбург, Свердловская обл., 620057

Доставка транспортной компанией Байкал сервис

Адрес основного филиала: г. Верхняя Пышма, ул. Обогатителей, д. 11А

Внимание: указаны адреса основных филиалов, в вашем городе их может располагаться гораздо больше, подробности уточняйте на сайте интересующей вас транспортной компании

Ваш отзыв может стать первым! Добавьте его, нажав на кнопку "Добавить отзыв"
Оцените продукт:
Артикул
k612-2
Материал
AISI 304 (08Х18Н10)
Поверхность
Полированная
Описание
Крепление рутеля к стене, двойное, фланец с тремя отверстиями, AISI 304
Назначение
Применяется при монтаже козырьков из стекла, навесов над входом в магазин, козырьков над входом в подвал или над местом курения. Один из самых ответственных элементов крепления козырька. Отвечает за крепление конструкции непосредственно к зданию и несёт на себе весь её вес.
Особенность модели
- Широкий спектр возможностей. Данная деталь чаще всего продаётся в комплекте с рутелем. Однако мы специально продаём её отдельно, так как это делает возможности её применения значительно шире. - Держатель для подвеса стеклянного козырька может использоваться как держатель любых навесных конструкций. Например, рекламных. Высокое качество при низкой цене. 304-я марка стали обеспечивает высокую устойчивость к агрессивной внешней среде. При этом позволяет выпускать крепление по вполне приемлемой цене. Отличный внешний вид детали обеспечивается её высококачественной полировкой. - Исключает возможность излома стекла. Конструкция фланца надёжно защищает конструкцию козырька от колебательных нагрузок.
Сборка и установка
Держатель крепится к стене посредством шпильки и втулки к кондуктору. Идеально становится на k615S , если использовать другие кондукторы, нужно проводить подготовительные работы. Затем в держатель вкручивается рутель (k274-2 или k269-6) и уже на рутель крепится стекло.
Аналогичные модели
k612- Держатель стеклянного козырька двойная (Соединение стойка – рутель х 2). k612-2 имеет три отверстия и выдерживает большую нагрузку
Доставка транспортной компанией ПЭК.

Адрес главного терминала: ул. Чистопольская, д. 6

Доставка транспортной компанией Деловые линии

Адрес основного филиала: ул. Таганская, 60, Екатеринбург, Свердловская обл., 620057

Доставка транспортной компанией Байкал сервис

Адрес основного филиала: г. Верхняя Пышма, ул. Обогатителей, д. 11А

Внимание: указаны адреса основных филиалов, в вашем городе их может располагаться гораздо больше, подробности уточняйте на сайте интересующей вас транспортной компании

Ваш отзыв может стать первым! Добавьте его, нажав на кнопку "Добавить отзыв"
Оцените продукт:
Контроль качества
Обновление от 23.10.2025
Популярные товары в этой категории
Крепление стеклодержателя (рутеля) к ванте (серьга) (AISI304) k659 купить в Красноярске
k659
304
3 149 ₽/шт
Крепление стеклодержателя (рутеля) к ванте (серьга) (AISI304) k659
Крепление стеклодержателя (рутеля) к стене под резьбу М14 (AISI304) k660 купить в Красноярске
k660
304
3 700 ₽/шт
Крепление стеклодержателя (рутеля) к стене под резьбу М14 (AISI304) k660
Крепление ванты(тяги) козырька к стене (AISI304), литое, полированное k658 купить в Красноярске
k658
304
3 514 ₽/шт
Крепление ванты(тяги) козырька к стене (AISI304), литое, полированное k658
I-спайдер-200мм, AISI 304, 2х26х38, 1х18х36/40мм, нагрузки: 1кН, 2кН k288-I-2 купить в Красноярске
k288-I-2
304
1 759 ₽/шт
I-спайдер-200мм, AISI 304, 2х26х38, 1х18х36/40мм, нагрузки: 1кН, 2кН k288-I-2
Крепление ванты(тяги) козырька к стойке алюминиевого фасада, AISI 304,литое,полированное, k610 купить в Красноярске
k610
304
3 757 ₽/шт
Крепление ванты(тяги) козырька к стойке алюминиевого фасада, AISI 304,литое,полированное, k610
Крепление козырька к стойке алюминиевого фасада, AISI 304, литое , полированное, k611 купить в Красноярске
k611
304
4 896 ₽/шт
Крепление козырька к стойке алюминиевого фасада, AISI 304, литое , полированное, k611
Крепление стеклодержателя (рутеля) к ванте (серьга) (AISI316) k659-16 купить в Красноярске
k659-16
316
3 501 ₽/шт
Крепление стеклодержателя (рутеля) к ванте (серьга) (AISI316) k659-16
Крепление рутеля к стене, двойное 250мм, фланец с тремя отверстиями, AISI 304 k612-3 купить в Красноярске
k612-3
304
/шт
Крепление рутеля к стене, двойное 250мм, фланец с тремя отверстиями, AISI 304 k612-3
Крепление стеклодержателя (рутеля) к стене под резьбу М14 (AISI316) k660-16 купить в Красноярске
k660-16
316
5 734 ₽/шт
Крепление стеклодержателя (рутеля) к стене под резьбу М14 (AISI316) k660-16
Крепление рутеля к тяге (серьга) (AISI316) М14 k659-16-2 купить в Красноярске
k659-16-2
316
4 857 ₽/шт
Крепление рутеля к тяге (серьга) (AISI316) М14 k659-16-2
Крепление ванты(тяги) козырька к стене (AISI316), литое, полированное k658-16 купить в Красноярске
k658-16
316
5 486 ₽/шт
Крепление ванты(тяги) козырька к стене (AISI316), литое, полированное k658-16
Кондуктор стандартный алюминиевый для монтажа козырька на алюминиевый фасад,275мм, под 7 саморезов k615S купить в Красноярске
k615S
3 348 ₽/шт
Кондуктор стандартный алюминиевый для монтажа козырька на алюминиевый фасад,275мм, под 7 саморезов k615S
Кондуктор облегченный алюминиевый для монтажа козырька на алюминиевый фасад,200мм, под 5 саморезов k615L купить в Красноярске
k615L
3 327 ₽/шт
Кондуктор облегченный алюминиевый для монтажа козырька на алюминиевый фасад,200мм, под 5 саморезов k615L
Кондуктор усиленный алюминиевый для монтажа козырька на алюминиевый фасад, 550 мм, под 13 саморезов k615X купить в Красноярске
k615X
6 478 ₽/шт
Кондуктор усиленный алюминиевый для монтажа козырька на алюминиевый фасад, 550 мм, под 13 саморезов k615X
Крепление тяги к стене двойное (AISI304) k669 купить в Красноярске
k669
304
18 465 ₽/шт
Крепление тяги к стене двойное (AISI304) k669
Крепление двойное с рутелями к стене, AISI 304 k629 купить в Красноярске
k629
304
10 456 ₽/шт
Крепление двойное с рутелями к стене, AISI 304 k629
Крепление стекла к тяге, шлифованное AISI 304 k622 купить в Красноярске
k622
304
4 375 ₽/шт
Крепление стекла к тяге, шлифованное AISI 304 k622
Крепление стекла к стене, шлифованное, AISI 304 k623 купить в Красноярске
k623
304
5 304 ₽/шт
Крепление стекла к стене, шлифованное, AISI 304 k623
Крепление тяги к стене, шлифованная AISI 304 k621 купить в Красноярске
k621
304
4 402 ₽/шт
Крепление тяги к стене, шлифованная AISI 304 k621
Крепление двойное с рутелями к тяге, AISI 304 k628 купить в Красноярске
k628
304
9 419 ₽/шт
Крепление двойное с рутелями к тяге, AISI 304 k628
Новинки категории
Крепление рутеля к тяге (серьга) (AISI316) М14 k659-16-2 купить в Красноярске
k659-16-2
316
4 857 ₽/шт
Крепление рутеля к тяге (серьга) (AISI316) М14 k659-16-2
Крепление рутеля к стене, двойное 250мм, фланец с тремя отверстиями, AISI 304 k612-3 купить в Красноярске
k612-3
304
/шт
Крепление рутеля к стене, двойное 250мм, фланец с тремя отверстиями, AISI 304 k612-3
Крепление двойное с рутелями к стене, AISI 304 k629 купить в Красноярске
k629
304
10 456 ₽/шт
Крепление двойное с рутелями к стене, AISI 304 k629
Крепление стекла к тяге, шлифованное AISI 304 k622 купить в Красноярске
k622
304
4 375 ₽/шт
Крепление стекла к тяге, шлифованное AISI 304 k622
Крепление стекла к стене, шлифованное, AISI 304 k623 купить в Красноярске
k623
304
5 304 ₽/шт
Крепление стекла к стене, шлифованное, AISI 304 k623
Крепление тяги к стене, шлифованная AISI 304 k621 купить в Красноярске
k621
304
4 402 ₽/шт
Крепление тяги к стене, шлифованная AISI 304 k621
Крепление двойное с рутелями к тяге, AISI 304 k628 купить в Красноярске
k628
304
9 419 ₽/шт
Крепление двойное с рутелями к тяге, AISI 304 k628
Кондуктор усиленный алюминиевый для монтажа козырька на алюминиевый фасад, 550 мм, под 13 саморезов k615X купить в Красноярске
k615X
6 478 ₽/шт
Кондуктор усиленный алюминиевый для монтажа козырька на алюминиевый фасад, 550 мм, под 13 саморезов k615X
Кондуктор облегченный алюминиевый для монтажа козырька на алюминиевый фасад,200мм, под 5 саморезов k615L купить в Красноярске
k615L
3 327 ₽/шт
Кондуктор облегченный алюминиевый для монтажа козырька на алюминиевый фасад,200мм, под 5 саморезов k615L
Кондуктор стандартный алюминиевый для монтажа козырька на алюминиевый фасад,275мм, под 7 саморезов k615S купить в Красноярске
k615S
3 348 ₽/шт
Кондуктор стандартный алюминиевый для монтажа козырька на алюминиевый фасад,275мм, под 7 саморезов k615S
Проконсультируйтесь с менеджером по вопросу оказания услуг в городах Красноярского края: Енисейск, Лесосибирск, Игарка, Ачинск, Сосновоборск, Заозёрный, Артёмовск, Канск, Уяр, Назарово, Железногорск, Бородино, Кодинск, Зеленогорск, Дивногорск, Боготол, Минусинск, Ужур, Шарыпово, Иланский, Дудинка, Норильск.
Наш Telegram-канал
Эксклюзивные акции и скидки только для подписчиков: не упусти выгоду!
Перейти на наш канал
Подпишись на наш Telegram-канал
Эксклюзивные акции и скидки только для подписчиков: не упусти выгоду!